480-443-9300

  • Welcome!
  • Fish Bowl
  • Your Next Space
  • Let us hear from you
  • Where It’s At
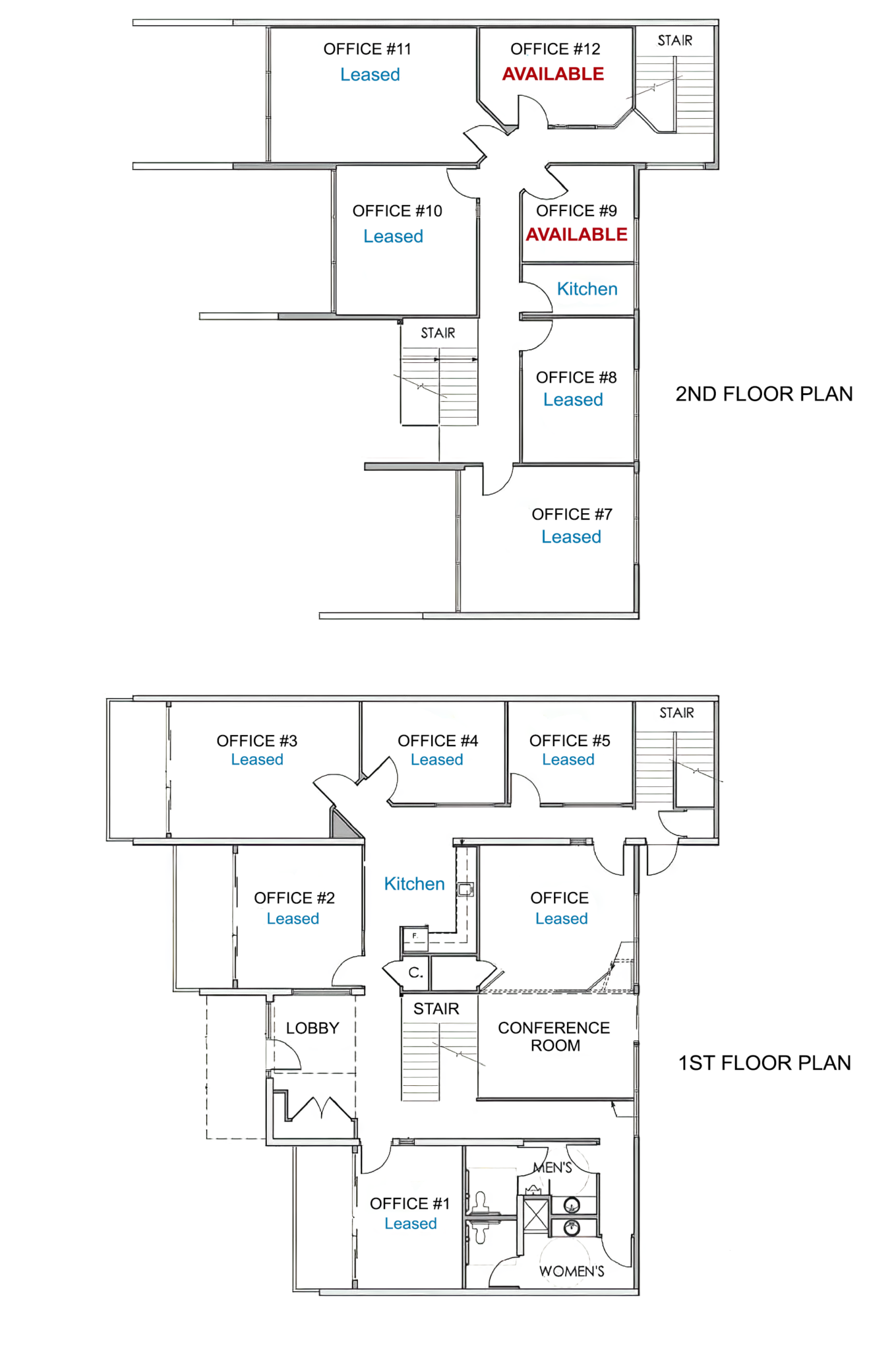
Check Current Availability
  • Welcome!
  • Fish Bowl
  • Your Next Space
  • Let us hear from you
  • Where It’s At

Copyright 2025 AZ Collaborate - 6910 E 5th Ave Scottsdale AZ 85251 - 480-443-9300